AUSCP UNIPLEX SX1
AUTOMATIC COLLATING AND BOOK SEWING PRODUCTION LINE
Introduction
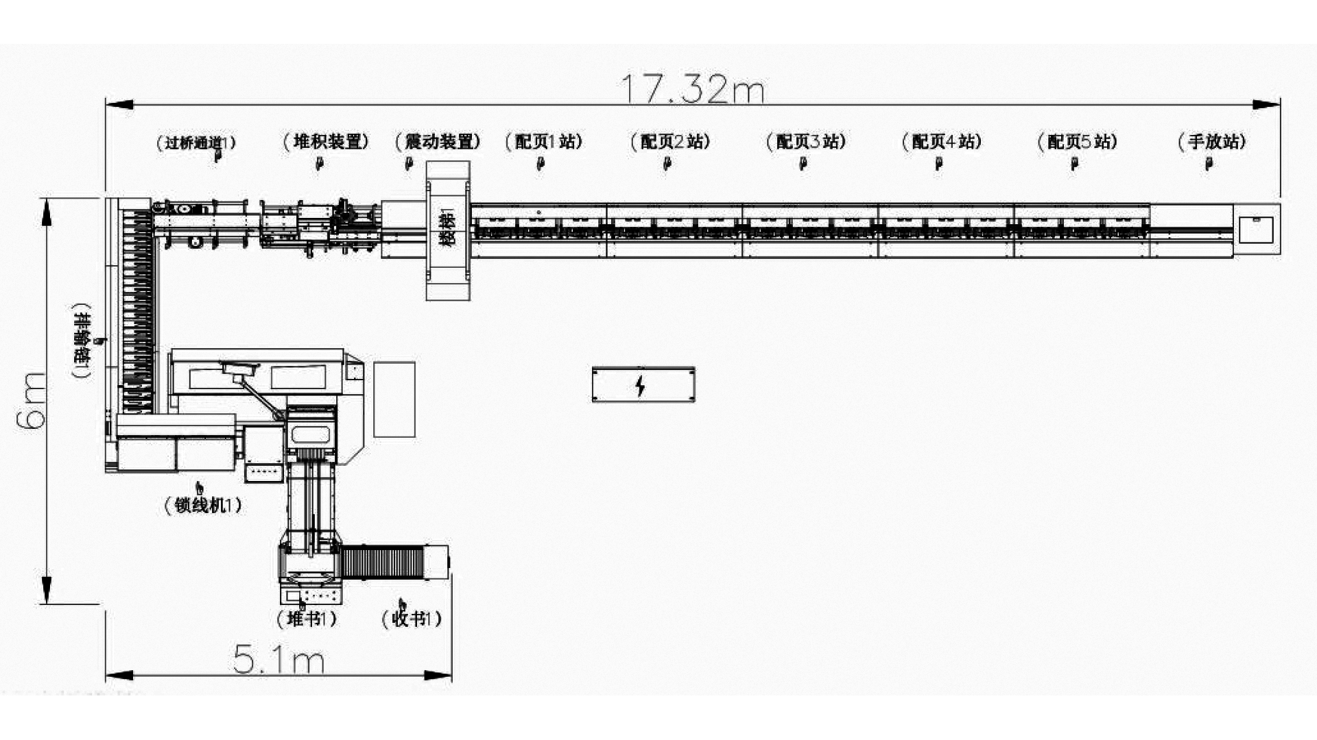
The product consists of one AUSCP (SX22O/43, SX200/51, SX NO SPACE) automatic book sewing machine with standard configuration, and multiple sets of AUSCP PY43 collating station linked to get her (up to 48 collating stations can be connected, with a standard configuration of 15 collating elations).
DESIGN CONCEPT
The collating and book sewing line is currently the fastest way to complete the collating and book sewing processes on a single production line, making it the perfect combination of automatic collating and automatic book sewing machines. It eliminates the need for manual handling and storage, saves labor and space for transfer, reduces worker fatigue, improves production efficiency, and save production costs
PRODUCT CONFIGURATION
- Two AUSCP (SX220/43, SX200/51, SX NO SPACE) book sewing machines with two manipulators and two AUSCP PS Automatic feeding conveyor chains.
- 15 collation stations and 2 hand stations.
- AUSCP DJ43 Book receiving stacker.
Function and Features
COLLATING MACHINE
- Intelligent control system, programmable via menu, the machine comes standard with a 12-inch color touch screen on a rotating arm, which can control machine operation, alarm information, and facilitate timely troubleshooting for the operator. It is easy to operate and simple to learn.
- The pagination station is equipped with sensors for detecting thickness, empty or blocked pages, and conveyance, with indicator lights for quick troubleshooting.
- The pagination machine has continuous start-up and emptying functions, and automatically feeds according to the needs of the automatic wire stitching machine without manual intervention.
- The pagination machine adopts a roller-type lower-pasting design, and the book pages run vertically without friction during rapid operation.
- The transport channel adopts a drum-type frictionless design to prevent pages from being rubbed and ensure smooth transport.
- Each wire stitching machine is equipped with a storage channel (tank chain) for feeding on demand and automatic filling of down time caused by pagination machine stoppage.
- Modular design, freely combinable, with a maximum of 48 pagination stations.
BOOK SEWING MACHINE
- High speed and precision: maximum speed of up to 200 signatures per minute, with three fully sealed cam control boxes filled with lubricating oil for smooth and durable operation. The flywheel accurately drives paper feeding, conveying, and saddle stitching. The book signature on the saddle is precisely positioned through synchronized belt structure with puller.
- The book poet is precisely positioned by the puller gauge of the upper and lower synchronous belt structure.
- Intelligent debugging: colored touch screen monitors the entire production, including paper feeding, conveying, lock stitching, and receiving, ensuring the quality of lock stitching.
- Fault detection & identifying: When faults such as misting signatures, multi-signatures, jams, dropped signatures, shortened signatures, and broken signatures occur, the machine will alarm and pause while displaying the fault.
- Automatic miss-signature detection function.
- Memory storage: can store 20 different book sewing programs and recall them as needed.
- Automatic plate adjustment: by setting the size of the signature on the touch screen and confirming the page turning method, the transmission system automatically positions the conveyor belt, opens the page turner, adjusts the position of the fixed saddle drive chain and acceleration wheel, and adjusts the height of the finished book platform. Simple and easy to learn, fast operation, and quick plate switching, which improves production efficiency.
- Signature separation: the blower and mechanical arm separate the bottom signature from the pile, and the suction cup extracts the separated signature from the feeder. The mechanical arm clamps the book signatures to the conveyor. The tilting device helps eliminate scratches on the surface of the signature.
- Automatic page-turning: the page-turner is equipped with four programmable vacuum suction devices, both on the upper and lower sides, which can perform 4+4 vacuum page turning and handle signatures with even or uneven tops and bottoms. It can automatically flip through sets of pages, loose pages, pages without long or short edges, and unevenly thick signatures. It can also turn pages or signatures with edges over 8mm long or short.
- Signature conveying: the signature is placed on the conveying saddle after being turned and is pushed by the conveyor chain hook. The acceleration wheel sends the signature into the active lockstitch saddle, and the speed of the acceleration wheel automatically adjusts according to the speed of the machine.
- Automatic signature separation and thread cutting: the automatic signature separation and thread cutting device cuts the excess thread to about 8-10 mm for easy binding and can separate the book signatures one by one according to the setting, regardless of the number of signatures in the book.
- Flat lock: uses refined ultra-short needles (16 mm) with a narrow stitch spacing (19 mm) to make the product flatter and less prone to glue leakage, ensuring high-quality book sewing. The lockstitch device consists of cam box-type equipment, which not only reduces noise but also extends the life of the cam.
- Equipped with a book stacking machine, it can stack books with locked binding up to a height of 120mm and neatly convey them to the book collection platform for easy palletizing.
- Lubrication on demand: equipped with a centralized oil supply lubrication system, oil pressure alarm, and oil storage device. When the machine is in operation, the lubricant is precisely supplied through pipes to wherever necessary in a timely manner.
Specification
| Collating Machine | ||||||
|---|---|---|---|---|---|---|
| Max Operating Speed | 6000 RPH | |||||
| Number of Collated Pages | 12-48 Signatures | |||||
| Max Size (H x L) | 430 x 285 mm | |||||
| Min Size (H x L) | 148 x 95 mm | |||||
| Book Sewing Machine | ||||||
| Max Operating Speed | 220 Signatures Per Minute | |||||
| Max Signature Size (H x L) | 430 x 320 mm | |||||
| Min Signature Size (H x L) | 148 x 95 mm | |||||
| Max Number of Stitch Position | 10 | |||||
| Stitch Length | 19 mm | |||||
| Min Signature Sewed | 2 Signatures | |||||
| Page Turner Quantity | 4 top + 4 bottom | |||||
| Thread Hook Diameter | 16 mm | |||||
| Single Signature Thickness | 0.5 ~ 1.5 mm | |||||
| Whole Machine | ||||||
| Power Consumption | 20 KW | |||||
| Net Weight | 8500 Kg | |||||
| Air Consumption (External Supply) | Max 10 m3/min at 8 bar | |||||
| Standart Voltage | 380V/220V 50 Hz or 400V, 50Hz, 3 Phases | |||||
| Dimension (Length x Width x Height) | 23550 x 6300 x 1850 mm | |||||
| Book Size | L | H | S | |||
| Max Size | 320 | 430 | 1.5mm | |||
| Min Size | 95 | 148 | 0.5mm | |||